Woonoppervlakte
126 m2
Bouwjaar
1940
Aantal (slaap)kamers
3
Kaveloppervlakte v.a.
3.000 m2
De feiten op een rij
- Karakteristieke jaren 30 woning
- Parkeren op eigen afsluitbaar terrein
- Twee onderheide poorthekken en nieuwe dam (2020)
- Grote schuur met garage van 90 m2 en twee paardenstallen
- Ruime serre op het zuiden met glas rondom voorzien van vloerverwarming
- Authentieke details met glas in lood en granieten vloer in de hal
- Geheel voorzien van dubbel glas (m.u.v. glas in lood ramen)
- Massief houten merkkeuken van Nederlands fabricaat en Smeg fornuis (2019)
- Eiken visgraat vloer met bies op de begane grond en houten vloer op de verdieping
- Schilderwerk interieur 2019 en exterieur rondom 2021(door erkend schildersbedrijf)
- Extra vrijstaande paardenstal (3 stallen) met paddock
- Fantastisch en uniek uitzicht rondom over de weilanden
- Unieke vrije ligging met weilanden links en rechts van de kavel
- Heerlijk genieten van de natuur in het Loetbos op 600 meter afstand
- Riant terras op de 1e verdieping met mogelijkheid voor vergunningsvrij bouwen van een extra slaapkamer met uniek uitzicht op de polder
- Geheel voorzien van dubbel glas (m.u.v. glas in lood ramen)
- Tuinontwerp: Lindeloof Tuin- & Landschapsarchitecten

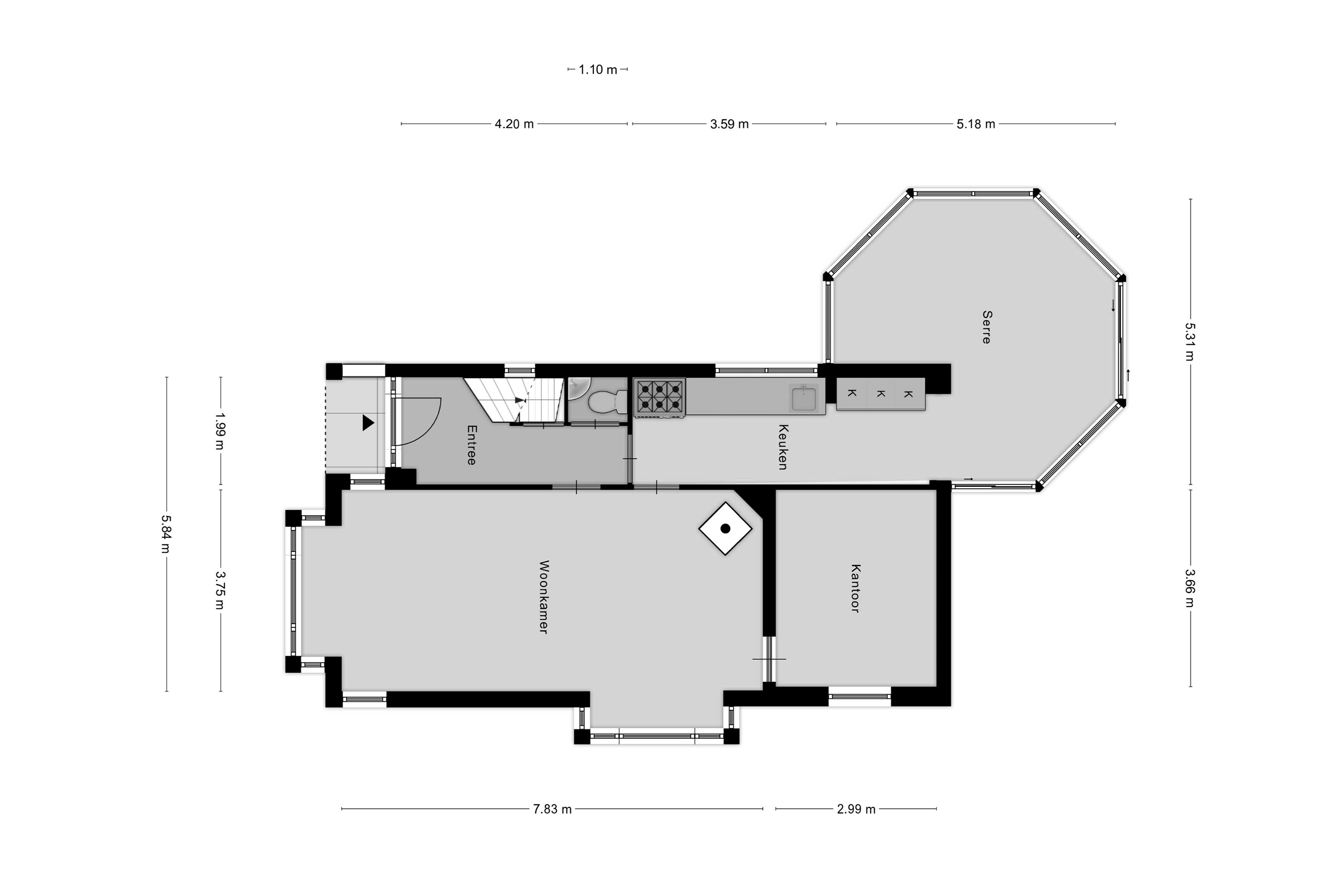
Originele granieten vloer, glas in lood deuren en een riant kantoor.
Je gasten ontvang je in de authentieke hal met originele granieten vloer. Op de begane grond vind je een extra slaapkamer, of zoals nu in het gebruik een riant kantoor, met uitzicht op de weilanden en de altijd rustige toegangsweg.
De 1e verdieping biedt plaats aan een royale overloop, badkamer en twee slaapkamers en een groot dakterras op het zuiden met vrij uitzicht over de polder. De hoofdslaapkamer is voorzien van 2 kamerbrede diepe kasten. Op het dakterras kun je desgewenst vergunningsvrij een 4e (slaap)kamer creëren.
De 2e verdieping, een verdiepinghoge bergruimte, die te bereiken is met een nieuwe vlizotrap uit 2022, is voorzien van 2 dakramen en vloerbedekking en biedt alle ruimte voor jouw persoonlijke zaken
Een grote schuur, paardenstallen en een royale bergruimte.
Direct achter de woning tref je een extra grote schuur met 2 extra paardenstallen van 3 x 3.5 meter en een meer dan royale bergruimte; de totaaloppervlakte van de schuur is 90 m2. De paardenstal in het weiland biedt plaats aan 3 boxen van 3.5 x 3 meter. De woning verkeert in een uitstekende staat en is geheel door de vakman onderhouden en rondom recent voorzien van vakkundig schilderwerk door een erkend schildersbedrijf (volledig interieur 2019 en exterieur rondom 2021). De hoofdslaapkamer is in 2022 voorzien van 3 nieuwe ramen met dubbel glas (HR++).


Tuin inspiratie
De locatie met zijn structuur, geschiedenis en omgeving enerzijds en het toekomstige
functioneren anderzijds zijn bepalend voor de nieuwe uitstraling van de kavel. Het
ontwerp is een reactie op het voorgaande en uit zich in een resultaat, waarbij de plek
zich met een eigen nieuw of oorspronkelijk karakter voegt in een groter geheel. Door
te kiezen voor de combinatie van behoud en versterking van het aanwezige en het
aanbrengen van contrasterende elementen ontstaat een samenhangend geheel met een eigen identiteit.
Jos van de Lindeloof:
“Het proces loopt door van de eerste visie tot een zorgvuldige detaillering en uitwerking van het ontwerp.
Tuin- en landschapsinrichting is in veel gevallen naast ontwerpen in traditionele zin planologisch regisseren.
Het toekomstig beheer van de buitenruimte en het beoogde ruimtelijk beeld in de loop der tijd zijn belangrijke aspecten bij het ontwerpproces."
Een veilige en besloten kavel met een vernieuwde dam.
Voor een veilig en besloten gevoel is de kavel afgesloten met twee onderheide luxe poorthekken met grote inrijpoort uit 2020 en de geheel in 2020 vernieuwde dam naar de entree van de woning is voorzien van een hardhouten beschoeiing. Wil je echt alle dagen landelijk genieten van de natuur met volop privacy dan is deze unieke charmante jaren 30 woning voor jou bestemd. Hier woon je op een van de mooiste plekjes in de Krimpenerwaard met een unieke vrijheid rondom jouw droomwoning!
Plattegronden
Downloads

Vraagprijs
v.a. € 960.000 k.k.
Kavel 3.000 m2
Optioneel met extra kavel 4.100 m2. Vraagprijs extra kavel € 35.000 k.k.
Meer informatie of een bezichtiging aanvragen?
Neem contact op met De Koning makelaars
Bel
0182 590 900
Mail
gouda@dekoningwonen.nl































